(abre en una nueva pestaña)
Property Description
Espectacular adosado ubicado en una de las urbanizaciones mas prestigiosas de la comunidad Valenciana, El bosque que dispone de vigilancia privada las 24 Horas , con una excelente accesibilidad ya que disponemos el centro comercial Bonaire a 15 minutos.
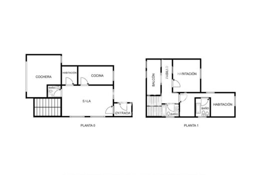
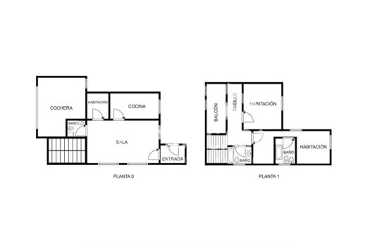
La vivienda se distribuye en dos plantas que disponen de aire centralizado, en la planta inferior El Salón-comedor con salida a la terraza y una gran cocina office dándonos una gran amplitud, también encontramos dos habitaciones y un baño completo dándonos una disponibilidad total de hacer vida en una sola planta.
si subimos a la planta superior encontramos un salón con terraza y la habitación de matrimonio con vestidos y baño.
Si bajamos al Garaje encontramos un gran trastero y dos plazas de garaje. En las zonas comunes podemos encontrar zonas ajardinadas con mesas para pasar la tarde y una gran piscina que se mantiene los 365 días del años.
NO DUDES EN CONTACTARNOS .
(Este anuncio carece de carácter contractual y no representa una oferta vinculante. La información puede estar sujeta a errores, omisiones o modificaciones sin previo aviso. Número de Registro de Agentes de Intermediación Inmobiliaria de la Comunidad Valenciana: RAICV-0684,)



























194 m2