(abre en una nueva pestaña)
Property Description
Si te gusta vivir rodeado de naturaleza y en un lugar confortable, Residencial River Dee te encantará. Esta exclusiva promoción se encuentra en la urbanización El Bosque, en Chiva, a poca distancia de la ciudad de Valencia. Disfruta de una urbanización cerrada con vigilancia 24 horas, un prestigioso club de golf, club de tenis con piscina, restaurantes y mucho más para tu comodidad.
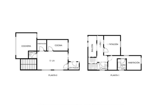
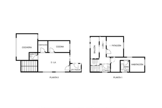
Las viviendas constan de 26 pareados con un estilo contemporáneo y vistas fabulosas. Cada casa se distribuye en dos plantas, con un total de 145 m² construidos y una parcela de 225 m². Incluyen cuatro habitaciones, dos baños, cocina y un salón-comedor con acceso a una hermosa terraza. Acabados de alta calidad, puerta acorazada, aerotermia, sistema inverter de calefacción, y doble acristalamiento aseguran el máximo confort. Piscina opcional no incluida. Entrega a finales de 2022. ¡Infórmate, te encantará!
(Este anuncio carece de carácter contractual y no representa una oferta vinculante. La información puede estar sujeta a errores, omisiones o modificaciones sin previo aviso. Número de Registro de Agentes de Intermediación Inmobiliaria de la Comunidad Valenciana: RAICV-0684,)




































224 m2
2.326 m2 






























